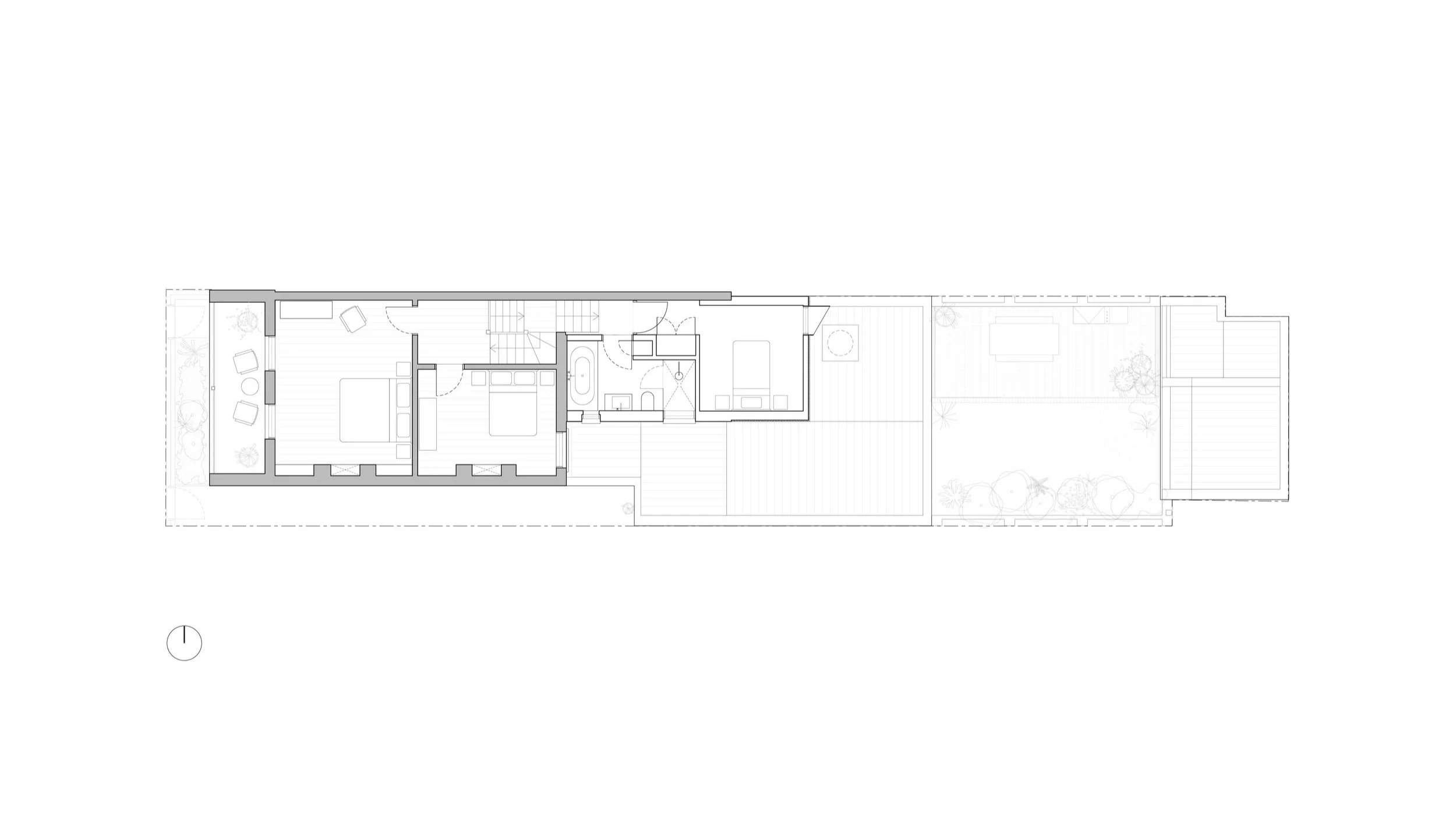
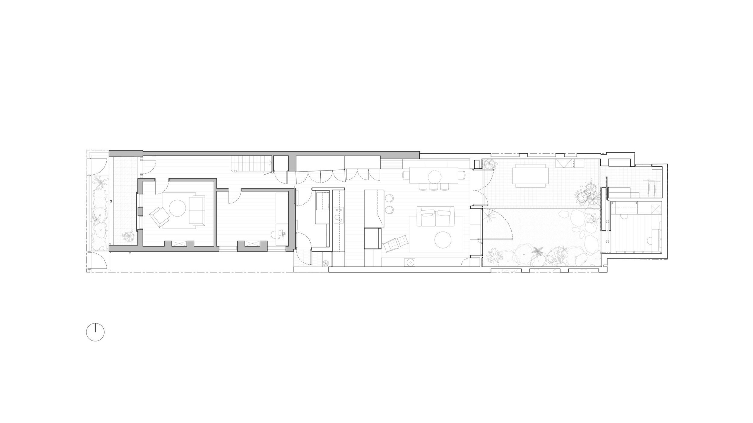
Fitzroy North House
Fitzroy North, 2020
Residential Addition,
Photography: Ari Hatzis
This multi-functional inner urban dwelling is punctuated by a lush courtyard space which separates the music studio from the main house. White masonry extends from internal to external space to envelope the private garden and create a calming backdrop to the busyness of family life.
