industry beans
Fitzroy, 2013
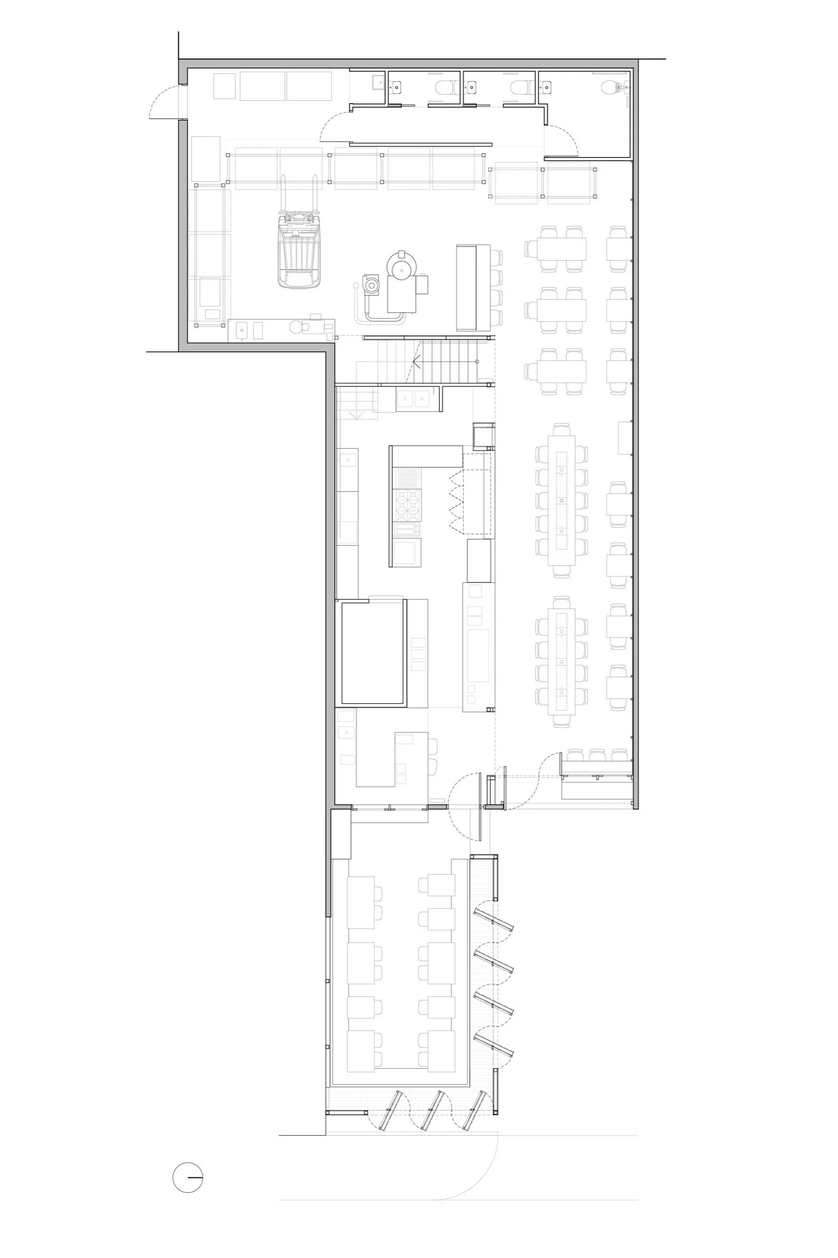
Cafe & Roastery, 300 sq.m
Photography: Sean Fennessey & Luke Brice
Winner in the 2014 Restaurant & Bar Design Awards (London) for Best International Cafe
Winner in the 2014 Australian Interior Design Awards in the Hospitality Design category
Winner in the 2014 Australian Interior Design Awards for Best of State Commercial Design
High Commendation in the 2013 Eat Drink Design Awards for Best Cafe Design
Industry Beans is a café and coffee roastery in an existing factory shell. The design features a double height dining hall and inventive use of economic materials such as pallets and plywood to provide warmth and texture within an industrial setting. An external structure utilises pivoting panels to playfully moderate the external conditions.
